Callnet Ingatlan

KAPCSOLAT
Siklói György


+36 70 456

ingatlan@

Az időpont kérés naptár ikonja
IDŐPONTOT KÉREK
A visszahívás kérés telefon ikonja egy azt körbe ölelő nyíllal
VISSZAHÍVÁST KÉREK
Ajánlom egy ismerősömnek ikon
AJÁNLOM EGY ISMERŐSÖMNEK
Facebook megosztás ikon
MEGOSZTÁS

KAPCSOLATFELVÉTEL

Küldés

Az üzenetet sikeresen elküldtük!
Hiba történt!
INGATLAN ADATAI

Ingatlan jellege

téglalakás

Belső terület

83 m²

Tájolás

nyugat

Építési állapot

használt

Építési mód

tégla

Szobák száma

3 szoba

Kert

(saját kert)

Terasz

17 m²

Emelet

földszint.

Épület szintje

3.

Akadálymentes

részlegesen

Lift

nincs

Ingatlan állapot

kívül: jó
belül: kitűnő

Klíma

van

Fűtés

cirko

Komfort

duplakomfort

Kilátás

kertre, udvarra

Energetika

nincs megadva

Az időpont kérés naptár ikonja
HTML
Az időpont kérés naptár ikonja
PDF
Eladó téglalakás
Ingatlan azonosító:
439_cai

Budapest, IX. kerület, Ferencváros-Belváros

Irányár

137 M Ft

Szobák

3 szoba

Emelet

földszint

Terület

83 m²
INGATLAN LEÍRÁSA
IX. Ráday utca…

Valakinek ez semmit nem mond -csak egy utca-, valakinek egy fantasztikus lehetőség, remek befektetési potenciál. Airbnb és a hosszútávú kiadás is engedélyezett, kiváló lokáció!

Nézze meg a videót!

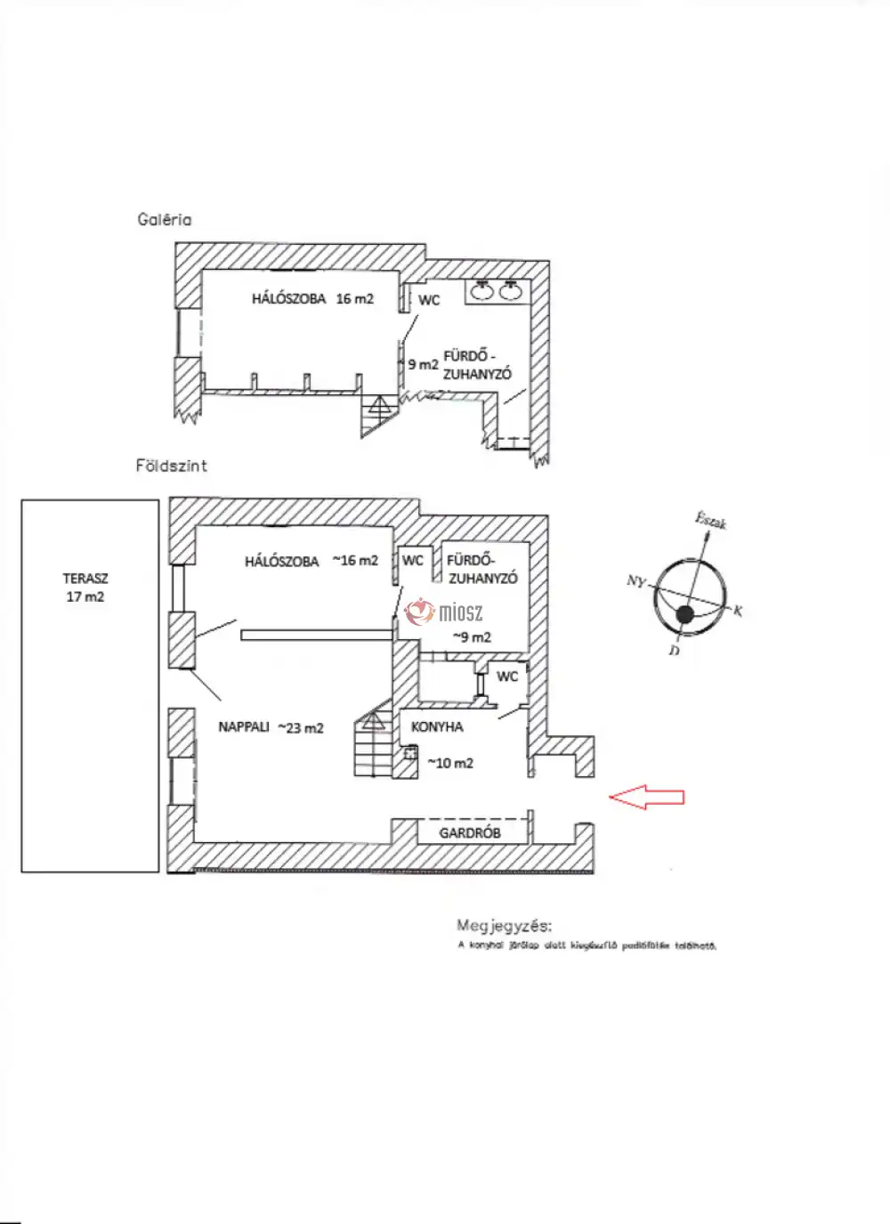
A földszinti lakás egy patinás ház belső udvarából nyílik, belső két szintes, kertkapcsolatos, duplakomfortos.

83 m2 hasznos terület, a földszinten nappali + háló, konyha, fürdőszoba, 2 wc, az emeleten háló, fürdőszoba + wc elosztással rendelkezik.

2017-ben volt felújítás, az ablakok szigeteltek, fűtés és meleg víz ellátásáról kombicirkó gondoskodik. A 2 klíma további komfortérzetet biztosít.

A nappaliból nyíló 17 m2-es terasz egyedi hangulatot kölcsönöz az ingatlannak, csend és nyugalom vesz körbe, a kapun kilépve pedig a belváros nyüzsgő forgataga ragad magával. Külföldiek által is kedvelt, igazán hangulatos környezet.

Az ingatlan tehermentes, akár azonnal birtokba vehető!


INGATLAN ADATAI

Ingatlan jellege
téglalakás
Belső terület
83 m²
Tájolás
nyugat
Építési állapot
használt
Építési mód
tégla
Szobák száma
3 szoba
Kert
(saját kert)
Terasz
17 m²
Emelet
földszint.
Épület szintje
3.
Akadálymentes
részlegesen
Lift
nincs
Ingatlan állapot
kívül: jó
belül: kitűnő
Klíma
van
Fűtés
cirko
Komfort
duplakomfort
Kilátás
kertre, udvarra
Energetika
nincs megadva
TÉRKÉP

Budapest, IX. kerület, Ferencváros-Belváros

KAPCSOLAT
Siklói György
Siklói György


+36 70 456 1140

ingatlan@callnet.hu

KAPCSOLAT
Siklói György

+36 70 456

ingatlan@

Az időpont kérés naptár ikonja
IDŐPONTOT KÉREK
A visszahívás kérés telefon ikonja egy azt körbe ölelő nyíllal
VISSZAHÍVÁST KÉREK
Ajánlom egy ismerősömnek ikon
AJÁNLOM EGY ISMERŐSÖMNEK
Facebook megosztás ikon
MEGOSZTÁS

KAPCSOLATFELVÉTEL

Küldés

Az üzenetet sikeresen elküldtük!
Hiba történt!
INGATLAN ADATAI

Ingatlan jellege

téglalakás

Belső terület

83 m²

Tájolás

nyugat

Építési állapot

használt

Építési mód

tégla

Szobák száma

3 szoba

Kert

(saját kert)

Terasz

17 m²

Emelet

földszint.

Épület szintje

3.

Lift

nincs

Ingatlan állapot

kívül: jó
belül: kitűnő

Klíma

van

Fűtés

cirko

Komfort

duplakomfort

Kilátás

kertre, udvarra

Energetika

nincs megadva

Az időpont kérés naptár ikonja
HTML
Az időpont kérés naptár ikonja
PDF
Budapest, IX. kerület - Ferencváros-Belváros
Budapest, IX. kerület - Ferencváros-Belváros
Budapest, IX. kerület - Ferencváros-Belváros
Budapest, IX. kerület - Ferencváros-Belváros
Budapest, IX. kerület - Ferencváros-Belváros
Budapest, IX. kerület - Ferencváros-Belváros
Budapest, IX. kerület - Ferencváros-Belváros
Budapest, IX. kerület - Ferencváros-Belváros
Budapest, IX. kerület - Ferencváros-Belváros
Budapest, IX. kerület - Ferencváros-Belváros
Budapest, IX. kerület - Ferencváros-Belváros
Budapest, IX. kerület - Ferencváros-Belváros
Budapest, IX. kerület - Ferencváros-Belváros
Budapest, IX. kerület - Ferencváros-Belváros
Budapest, IX. kerület - Ferencváros-Belváros
Budapest, IX. kerület - Ferencváros-Belváros